Entdecken Sie
Ihr Traum-objekt

Beschreibung
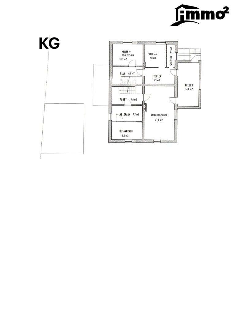
Ihr Rückzugsort am Kreuzbergl – Wohnen in absoluter Ruhelage Dieses außergewöhnliche Wohnhaus am Fuße des Kreuzbergls vereint Naturidylle, Privatsphäre und flexible Nutzungsmöglichkeiten unter einem Dach. Eingebettet in einen liebevoll angelegten Garten mit Pool, bietet diese Immobilie Raum für großes Familienleben oder auch getrenntes Wohnen durch die integrierte Einliegerwohnung mit separatem Eingang. Ob als großzügiges Einfamilienhaus oder Mehrgenerationen-Residenz – hier ist alles möglich. Hier geht's direkt zum 360° Rundgang:https://tour.giraffe360.com/40a63c523e2744fc9616b51c14dace9b [https://tour.giraffe360.com/40a63c523e2744fc9616b51c14dace9b] IMMO-HOCH2 HIGHLIGHTS Lage: Absolute Ruhelage am Kreuzbergl – eines der begehrtesten Naherholungsgebiete Klagenfurts Wohnfläche: ca. 187 m² |Nutzfläche: ca. 297 m² Grundstück: ca. 838 m² |Zimmer: 7,5 Küchen: 2 vollausgestattete Einbauküchen Fenster: Kunststoff, 2-fach verglastes Thermoglas Baujahr: 1952 |Befeuerung:Öl-Zentralheizung Besonderheiten: Einliegerwohnung mit separatem Eingang (leicht rückbaubar zu Einfamilienhaus) Großzügiger Keller mit Wellnessbereich und Sauna Kleiner, separater Weinkeller, sowie Hobby- und Werkstattbereiche Eingebauter Pool im Garten Doppelgarage (ca. 30 m²) mit Platz für 2 Fahrzeuge Eingebettet in eine der ruhigsten und grünsten Wohnlagen Klagenfurts Wohnen mit Charakter und Möglichkeiten Das Haus beeindruckt bereits beim Betreten durch seine einladende Atmosphäre und die durchdachte Raumgestaltung. Zwei getrennte Wohneinheiten ermöglichen unabhängiges Wohnen unter einem Dach – ideal für Familien mit mehreren Generationen oder zur Vermietung. Mit geringen Umbaumaßnahmen lässt sich das Anwesen jedoch wieder in ein großzügiges Einfamilienhaus verwandelt werden. Die Wohnräume sind hell und freundlich gestaltet, mit Blick ins Grüne und direktem Zugang zum Garten. Die beiden Einbauküchen fügen sich harmonisch in das Wohnkonzept ein und bieten gemütliche Treffpunkte für Familie und Gäste. Wellness, Wein & Handwerk – Raum für Lebensqualität Ein absolutes Highlight befindet sich im Untergeschoss: Der gut ausgestattete Wellnessbereich mit Sauna lädt zu entspannten Stunden ein. Zusätzlich stehen ein kleiner, separater Weinkeller sowie mehrere Hobby- und Werkstatträume zur Verfügung – perfekt für Genießer und Handwerker. Im Außenbereich überzeugt der gepflegte Garten mit einem eingebauten Pool (7x4m mit Römertreppe) – ein privater Ort zum Entspannen inmitten der Natur. Lage – Wohnen am Kreuzbergl Das Kreuzbergl zählt zu den begehrtesten Wohnlagen Klagenfurts. Hier vereinen sich Ruhe, Natur und Stadtnähe: Naherholungsgebiet mit Spazier- & Laufwegen vor der Haustüre Nur wenige Minuten ins Stadtzentrum Schulen, Einkaufsmöglichkeiten und Infrastruktur in kurzer Distanz Absolute Privatsphäre und Grünlage Zusammenfassung Dieses außergewöhnliche Haus am Kreuzbergl bietet Raum für vielfältige Lebenskonzepte – ob als exklusives Einfamilienhaus, Mehrgenerationenlösung oder mit separater Einliegerwohnung. Der private Garten mit Pool, der Wellnessbereich, mit direktem Ausgang zum Garten/Pool, sowie die einzigartige Ruhelage machen diese Immobilie zu einem seltenen Angebot in Klagenfurt. Ein Zuhause für Menschen, die das Besondere suchen. Vereinbaren Sie einen Besichtigungstermin und entdecken Sie die Möglichkeiten dieser einzigartigen Liegenschaft selbst. Hinweis gemäß Energieausweisvorlagegesetz: Ein Energieausweis wurde vom Eigentümer bzw. Verkäufer, nach unserer Aufklärung über die generell geltende Vorlagepflicht, sowie Aufforderung zu seiner Erstellung noch nicht vorgelegt. Daher gilt zumindest eine dem Alter und der Art des Gebäudes entsprechende Gesamtenergieeffizienz als vereinbart. Wir übernehmen keinerlei Gewähr oder Haftung für die tatsächliche Energieeffizienz der angebotenen Immobilie.
Lage
Die Liegenschaft befindet sich in einer der begehrtesten Wohnlagen Klagenfurts, direkt am Fuße des Kreuzbergls – dem beliebten Naherholungsgebiet der Stadt. Umgeben von weitläufigen Waldwegen, Naturteichen und idyllischen Spazierpfaden genießen Sie hier eine außergewöhnlich ruhige Wohnatmosphäre sowie ein hohes Maß an Privatsphäre mitten im Grünen. Gleichzeitig profitieren Sie von einer hervorragenden Infrastruktur: Die Klagenfurter Innenstadt, Schulen sowie zahlreiche Einkaufsmöglichkeiten sind in wenigen Minuten erreichbar. Damit verbindet diese Lage auf ideale Weise naturnahes Wohnen mit urbaner Lebensqualität.
Anlagen / Links

Seltene Gelegenheit am Fuße des Kreuzbergls mit Pool, viel Ruhe & Privatsphäre

Objekttyp

ZWEIFAMILIENHAUS

Objekt ID

1023

Adresse

Kärnten 9020 Klagenfurt am Wörthersee

Wohnfläche

186.15 m²

Grundstücksfläche

838 m²

Lagerfläche

Bürofläche

Zimmer

7.5

Badezimmer

1

Terrassen

Ja

Gartennutzung

Ja

Separate WC's

2

Heizung

Zentral.

Energieeffizienzklasse

Baujahr

1952

Letzte Modernisierung

2021

Zustand

Etage

Grundfläche

838 m²

Balkon

gartenfläche

683 m²

Altbau | Renoviert

NEUBAU

Anzahl der Etagen

2

Möbeliert

Stellplätze

2

parkplatz Garage

Garage.

Ausstattung
Gäste WC. Wanne. Dusche.
Provisionspflichtig

Ja

Balkon / Terassenfläche

18 m²

HWB–Klasse

Logen

Zustand

Wesentlicher Energieträger

Öl.

Boden

Fliesen. Laminat. Teppich. Kunststoff.

Verfügbar ab

nach Absprache

Käufer­provision

3% des Kaufpreises zzgl. 20% USt.

Kaufpreis

695000 EUR

Mietpreis Netto

Beschreibung
7.5
Beschreibung
Ihr Rückzugsort am Kreuzbergl – Wohnen in absoluter Ruhelage Dieses außergewöhnliche Wohnhaus am Fuße des Kreuzbergls vereint Naturidylle, Privatsphäre und flexible Nutzungsmöglichkeiten unter einem Dach. Eingebettet in einen liebevoll angelegten Garten mit Pool, bietet diese Immobilie Raum für großes Familienleben oder auch getrenntes Wohnen durch die integrierte Einliegerwohnung mit separatem Eingang. Ob als großzügiges Einfamilienhaus oder Mehrgenerationen-Residenz – hier ist alles möglich. Hier geht's direkt zum 360° Rundgang:https://tour.giraffe360.com/40a63c523e2744fc9616b51c14dace9b [https://tour.giraffe360.com/40a63c523e2744fc9616b51c14dace9b] IMMO-HOCH2 HIGHLIGHTS Lage: Absolute Ruhelage am Kreuzbergl – eines der begehrtesten Naherholungsgebiete Klagenfurts Wohnfläche: ca. 187 m² |Nutzfläche: ca. 297 m² Grundstück: ca. 838 m² |Zimmer: 7,5 Küchen: 2 vollausgestattete Einbauküchen Fenster: Kunststoff, 2-fach verglastes Thermoglas Baujahr: 1952 |Befeuerung:Öl-Zentralheizung Besonderheiten: Einliegerwohnung mit separatem Eingang (leicht rückbaubar zu Einfamilienhaus) Großzügiger Keller mit Wellnessbereich und Sauna Kleiner, separater Weinkeller, sowie Hobby- und Werkstattbereiche Eingebauter Pool im Garten Doppelgarage (ca. 30 m²) mit Platz für 2 Fahrzeuge Eingebettet in eine der ruhigsten und grünsten Wohnlagen Klagenfurts Wohnen mit Charakter und Möglichkeiten Das Haus beeindruckt bereits beim Betreten durch seine einladende Atmosphäre und die durchdachte Raumgestaltung. Zwei getrennte Wohneinheiten ermöglichen unabhängiges Wohnen unter einem Dach – ideal für Familien mit mehreren Generationen oder zur Vermietung. Mit geringen Umbaumaßnahmen lässt sich das Anwesen jedoch wieder in ein großzügiges Einfamilienhaus verwandelt werden. Die Wohnräume sind hell und freundlich gestaltet, mit Blick ins Grüne und direktem Zugang zum Garten. Die beiden Einbauküchen fügen sich harmonisch in das Wohnkonzept ein und bieten gemütliche Treffpunkte für Familie und Gäste. Wellness, Wein & Handwerk – Raum für Lebensqualität Ein absolutes Highlight befindet sich im Untergeschoss: Der gut ausgestattete Wellnessbereich mit Sauna lädt zu entspannten Stunden ein. Zusätzlich stehen ein kleiner, separater Weinkeller sowie mehrere Hobby- und Werkstatträume zur Verfügung – perfekt für Genießer und Handwerker. Im Außenbereich überzeugt der gepflegte Garten mit einem eingebauten Pool (7x4m mit Römertreppe) – ein privater Ort zum Entspannen inmitten der Natur. Lage – Wohnen am Kreuzbergl Das Kreuzbergl zählt zu den begehrtesten Wohnlagen Klagenfurts. Hier vereinen sich Ruhe, Natur und Stadtnähe: Naherholungsgebiet mit Spazier- & Laufwegen vor der Haustüre Nur wenige Minuten ins Stadtzentrum Schulen, Einkaufsmöglichkeiten und Infrastruktur in kurzer Distanz Absolute Privatsphäre und Grünlage Zusammenfassung Dieses außergewöhnliche Haus am Kreuzbergl bietet Raum für vielfältige Lebenskonzepte – ob als exklusives Einfamilienhaus, Mehrgenerationenlösung oder mit separater Einliegerwohnung. Der private Garten mit Pool, der Wellnessbereich, mit direktem Ausgang zum Garten/Pool, sowie die einzigartige Ruhelage machen diese Immobilie zu einem seltenen Angebot in Klagenfurt. Ein Zuhause für Menschen, die das Besondere suchen. Vereinbaren Sie einen Besichtigungstermin und entdecken Sie die Möglichkeiten dieser einzigartigen Liegenschaft selbst. Hinweis gemäß Energieausweisvorlagegesetz: Ein Energieausweis wurde vom Eigentümer bzw. Verkäufer, nach unserer Aufklärung über die generell geltende Vorlagepflicht, sowie Aufforderung zu seiner Erstellung noch nicht vorgelegt. Daher gilt zumindest eine dem Alter und der Art des Gebäudes entsprechende Gesamtenergieeffizienz als vereinbart. Wir übernehmen keinerlei Gewähr oder Haftung für die tatsächliche Energieeffizienz der angebotenen Immobilie.
Lage
Die Liegenschaft befindet sich in einer der begehrtesten Wohnlagen Klagenfurts, direkt am Fuße des Kreuzbergls – dem beliebten Naherholungsgebiet der Stadt. Umgeben von weitläufigen Waldwegen, Naturteichen und idyllischen Spazierpfaden genießen Sie hier eine außergewöhnlich ruhige Wohnatmosphäre sowie ein hohes Maß an Privatsphäre mitten im Grünen. Gleichzeitig profitieren Sie von einer hervorragenden Infrastruktur: Die Klagenfurter Innenstadt, Schulen sowie zahlreiche Einkaufsmöglichkeiten sind in wenigen Minuten erreichbar. Damit verbindet diese Lage auf ideale Weise naturnahes Wohnen mit urbaner Lebensqualität.
Ansprechpartner

Frau Kos

Firma

Immo Hoch2 GmbH.

Adresse

Hauptstraße 160 9210 Pörtschach am Wörthersee

E-Mail Direkt

info@immo-hoch2.at

Tel. Zentrale

+43 676 366 75 23

Ansprechpartner

Frau Kos

Kontakt Position

Firma

Immo-Hoch² GmbH

E-Mail Direkt

info@immo-hoch2.at

Tel. Zentrale

+43 676 366 75 23

immobilien Bilder

Hier finden Sie die besten Einblicke in diese Immobilie. Lassen Sie sich von den hochwertigen Bildern inspirieren und entdecken Sie alle Details, die dieses Objekt so besonders machen. Genießen Sie einen umfassenden Überblick über die Architektur, das Interieur und das Ambiente dieser Immobilie.

Entdecken Sie neue Möglichkeiten

Nehmen sie noch heute
Kontakt auf.

Kontaktieren Sie Uns!